Duurzaam tiny house op Tweede Wereldoorlog bunker in Leiden
Compact cluster
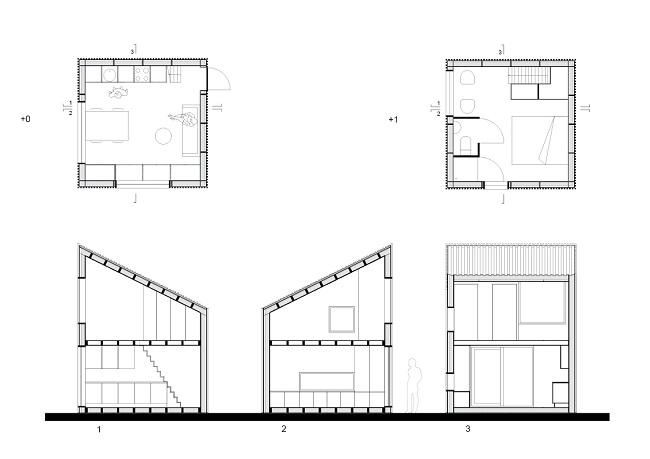
De bunker in het centrum van Leiden aan de Morsweg heeft muren tot wel drie meter dik en is grotendeel overgroeid met klimop. Froscen Architecten zet hier bovenop vier afzonderlijke tiny houses, ieder met een oppervlak van zo’n 38 m2 en alle benodigde faciliteiten. “Een compact cluster op een klein oppervlak,” aldus het bureau.

© Froscen Architecten
Ieder huisje heeft twee verdiepingen en een buitenterras. Op de eerste verdieping bevinden zich het woongedeelte en de keuken, met ruimte voor een eettafel en bank met opbergruimte. Op de tweede verdieping is ruimte voor een tweepersoonsbed, een zithoek, een ingebouwde kledingkast en de badkamer met douche en toilet.
Duurzaam concept
De constructie bestaat bijna volledig uit populierenhout van Thermowood, een contrast met het beton van het onderliggende gemeentelijke monument. De gevel heeft een houten ribbenstructuur tegen een zwarte achtergrond, waardoor deze van kleur lijkt te veranderen in het voorbijgaan.

© Froscen Architecten
Het FOON-concept is duurzaam van aard. Zo hebben de huisjes muren van ongeveer 30 cm dik voor een sterk isolerende functie en worden ze op natuurlijke wijze gekoeld door de koude lucht uit de bunker. In het ontwerp zijn verder o.a. meegenomen: de opvang van regenwater, een zonneboiler in de nok, led-verlichting, energieopwekking met zonnecellen, elektrisch koken en een droog toilet.

© Froscen Architecten
Het ontwerp van architect Simon George van Froscen Architecten is gemaakt naar aanleiding van een oproep aan architecten om een tiny house te visualiseren in de stad.

FOON is een tiny house bovenop een bunker uit de Tweede Wereldoorlog. © Froscen Architecten
Bij het thema van dit artikel betrokken organisaties
Meer artikelen met dit thema
Toekomstbestendig bouwen: leren van water in steden
9 apr om 07:30 uur3 min“Als je je tanden poetst moet je de kraan dichtdraaien. Die oproep van de overheid is bij de meeste mensen wel…
Symbiotisch bouwen krijgt vorm langs de A58
2 apr om 07:30 uur3 minLangs de A58 bij Oirschot is het Symbiotisch Bouwen Paviljoen geopend: een experimentele plek waar bouwen,…
Podcast: mens, natuur en gebouw in één samenhangend systeem
30 mrt om 07:30 uurNadine Troost, transitiemaker op het gebied van regeneratief ontwerpen, zoekt met bouwpartijen naar antwoorden…
Zwem- en sportcomplex Hoornse Vaart verbindt sport en groen
26 mrt om 07:30 uur2 minOp korte afstand van station Alkmaar Noord verrijst het nieuwe zwem- en sportcomplex Hoornse Vaart. VenhoevenCS…
Adriaan Dessingprijs 2026 zoekt bijzondere Westlandse projecten
19 mrt om 07:30 uur2 minWestlandse projecten staan in 2026 in de schijnwerpers met de vijfde editie van de Adriaan Dessingprijs. De…
Zonnepanelen op gevels: kansen voor utiliteitsgebouwen
13 mrt om 07:30 uur3 minEigenaren en gebruikers van kantoren, scholen of musea kunnen naast daken ook gevels benutten voor zonne-…
Drijvend licht maakt waterkwaliteit zichtbaar
12 mrt om 07:30 uur4 minWaterkwaliteit is een groeiende zorg, terwijl het probleem voor veel mensen onzichtbaar blijft. De installatie…
Carbon budget: de tijd dringt
3 mrt om 09:00 uur2 minIn de nieuwe publicatie Low Carbon Urbanism leggen experts van BURA, LEVS architecten en Urban Climate…

© Froscen Architecten
© Froscen Architecten
Reactie toevoegen