Straatje van tiny houses in Fries dorp
De tiny houses zijn ontworpen door Auke de Vor (27), die samen met Gerard Dijkstra het plan bedacht en uitwerkte. De Vor studeerde bouwkunde en architectuur (MA). Dijkstra (27) gaat zelf in een van de vijf tiny houses wonen. “De huisjes worden waarschijnlijk in juni of juli aangevoerd en in een dag geplaatst. Een aannemer sluit ze aan en dan staan ze er. Kant en klaar.”
Drie jaar geleden hadden De Vor en Dijkstra van Mill Home nog nooit van de tiny house movement gehoord. Ze verdiepten zich erin, nadat ze gingen nadenken over een eenvoudiger leven zonder de druk van een hoge hypotheek of huur. Dijkstra: “Ik had een drukke fulltime baan in Zeist en stond voor de keuze: of carrière maken en meer geld verdienen of meer vrijheid. Ik wilde niet full time meer werken en bovendien terug naar het noorden.” Hij woont nu op en tijdelijk adres in Hurdegaryp, maar verheugt zich op het wonen in het microhuisje.
Waarom zo'n groot huis?
De Vor heeft veel gereisd als backpacker en verbleef drie maanden in Mozambique. “Mensen woonden daar in een bamboehuisje in de modder. Toen ik terug in Nederland was, dacht ik: wat heb je nu eigenlijk nodig? Waarom moet een huis zo groot zijn? Ik zie mezelf niet in een duur huurhuis van 800 euro.”

Ze ontdekten de tiny house movement die zo’n ten jaar geleden in Amerika opkwam en steeds meer navolgers krijgt. Het tweetal deed marktonderzoek naar de grootte van de vraag naar kleine huisjes. Twee jaar waren ze bezig met het ontwerp van een prototype. Nu is hun energieneutraal en duurzaam smart tiny house klaar. Het is 30 vierkante meter, tien meter lang (inclusief bordes) en heeft veel “groene” snufjes.
Burgerinitiatief
De zoektocht naar een speciaal duurzaam paneel waarvan zowel dak, vloer als wanden zouden moeten worden gemaakt, bracht hen naar Rob Besemer van Mill Panel in het Brabantse Mill. Dit bedrijf fabriceert hoogwaardige sandwichpanelen voor de deurenindustrie. Besemer was onder de indruk van de plannen van beide noorderlingen en gezamenlijk richtten ze Mill Home op, dat kant-en-klare tiny houses op de markt brengt.

Dijkstra zocht contact met de gemeente Tytsjerksteradiel die zich profileert als duurzame gemeente. “Wij wilden dit burgerinitiatief faciliteren, want tiny houses zijn een leuke, nieuwe ontwikkeling binnen de volkshuisvesting,” aldus wethouder Geerling Schippers (FNP). “Als deze pilot aanslaat, worden er ook locaties voor microhuisjes gezocht in hoofdplaats Burgum en mogelijk andere plekken.”
Kurk
De 80 mm dikke panelen doen denken aan grote legoblokken. Ze worden machinaal en computergestuurd geproduceerd door Mill Panel. De panelen bestaan uit verschillende materialen. Het binnendeel van de plaat is van berkenhout, dat het huisje een natuurlijke uitstraling geeft. Daarna volgt een laag van vocht- en dampwerend aluminium en vervolgens een van randhout met isolerend kurk. De laatste laag, tevens de gevelafwerking, bestaat uit Tricoya, een MDF-achtige onderhoudsvrije plaat gemaakt van acoya. Tricoya spaanplaat wordt ook wel gebruikt voor buitendeuren; behandeling of onderhoud ervan is niet nodig. Tricoya gaat minimaal 50 jaar mee. Als isolatiemateriaal is gekozen voor reguliere isolatie met drukvast xps-schuim.
De buitenkleur van het huisje is tijdloos zwart, waardoor het niet schreeuwerig oogt. “We zochten een universeel en uniek ontwerp.”
Vernuftige opbergplekken
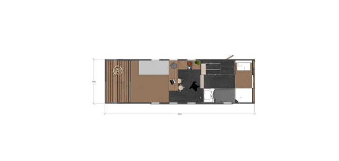
Het minihuis maakt een ruime indruk. “De hal waar je binnenkomt is 3,8 meter hoog, want het huis moet een gevoel van ruimte geven en niet aanvoelen als kleine woning,” licht De Vor toe. De multifunctionele woonkamer meet drie bij drie meter en kan desgewenst worden omgetoverd tot slaapkamer of grote lounge. Ook de badkamer is met 3,5 meter verrassend hoog. “We wilden een luxe badkamer waar veel licht naar binnenvalt.”

De plattegrond van een Smart Tiny House.
Het huis heeft, zoals veel tiny houses, vernuftige opbergplekken: lades die in blokken zijn verwerkt en zelfs in de vloer bevindt zich opbergruimte. De keuken met barretje is de centrale plek van de woning. Ook zijn er diverse handige multifunctionele meubels zoals een dressoirkast die kan worden omgetoverd tot tafelblad.
E-shower
De woning heeft een geïntegreerd zonnedak: de dakbedekking wekt tegelijkertijd zonne-energie op. Een slimme innovatie die het huis nog iets duurzamer maakt, stelt Dijkstra. In de woning komt een doorstroomboiler of een 20-literboiler. Er wordt elektrisch gekookt en geventileerd. Het huisje krijgt aansluiting op de reguliere nutsvoorzieningen. De badkamer heeft een design Hamwells e-shower, die het warme gebruikte douchewater continue met micro- en UV-filter zuivert, zodat het water kan worden hergebruikt. Er is een wasbak-toiletcombinatie, die niet alleen ruimte maar ook water bespaart.
Belangstelling enorm
Binnen drie weken kwamen er 34 reacties binnen van geïnteresseerden bij Dijkstra. Daarvan bleven er na selectie zes over. Onder hen bevinden zich drie twintigers, een veertiger en een vijftiger. Een loting moet uitwijzen wie er daadwerkelijk in mag.
De special Duurzaam Bouwen van Stedebouw & Architectuur is maandag 8 mei te downloaden in onze bibliotheek. U kunt deze editie ook los bestellen (kosten: 15 euro, excl. btw en verzendkosten). Mail naar klantenservice@acquirepublishing.nl

Bij het thema van dit artikel betrokken organisaties
Meer artikelen met dit thema
Hanzehogeschool Groningen test houten gebouw digitaal op aardbevingen
20 mei om 11:14 uurHanzehogeschool Groningen heeft als eerste in Europa een meerlaags houten gebouw digitaal getest op…
Genomineerden BNA Beste Gebouw van het Jaar 2026 bekend
28 apr om 13:25 uur2 minDe Koninklijke Bond van Nederlandse Architectenbureaus (BNA) heeft de acht genomineerden voor BNA Beste Gebouw…
Adriaan Dessingprijs 2026 zoekt bijzondere Westlandse projecten
19 mrt om 07:30 uur2 minWestlandse projecten staan in 2026 in de schijnwerpers met de vijfde editie van de Adriaan Dessingprijs. De…
Drijvend licht maakt waterkwaliteit zichtbaar
12 mrt om 07:30 uur4 minWaterkwaliteit is een groeiende zorg, terwijl het probleem voor veel mensen onzichtbaar blijft. De installatie…
Heldere Net Zero-standaard voor de gebouwde omgeving
10 feb om 09:30 uur3 minDe Dutch Green Building Council (DGBC) introduceert, samen met SKAO en Climate Cleanup, een nieuwe Net Zero-…
Bouwen aan een klimaatneutrale toekomst
3 feb om 07:30 uur3 minDe bouwsector staat op een keerpunt waarin ambitie en realiteit vaak botsen. Terwijl de vraag naar woningen en…
Amsterdamse Sluisbuurt krijgt zoöperatie Zoë: wonen als ecosysteem
27 jan om 09:00 uur3 minMet de start van de bouw van Zoë krijgt de Sluisbuurt op Zeeburgereiland in Amsterdam er een bijzonder…
Digitaal ontwerpen: ‘Gebouwen gaan meer op de natuur lijken’
19 jan om 07:30 uur16 minDigitaal geprogrammeerd ontwerpen verandert het vak van architect razendsnel. Bij the ArchiTech Company ziet…

Reactie toevoegen